2026-04-24 02:25
您当前使用的浏览器版本过低,可能存在安全风险,建议升级浏览器,或者用以下浏览器浏览
▸苏州道壹号售楼处地址:江苏省苏州市工业园区钟南街东、苏州大道南(湖东永旺梦乐城北侧)(看房请提前预约)
【温馨提示】本项目唯一官方联系方式,看房请提前预约!现场销售接待!谨防中介虚假信息!
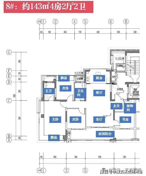
约143㎡4房2卫设计为改善型四房,是板块内备受青睐的经典改善型产品,在空间布局与功能性上取得了很好平衡,精准对标主流品质家庭.
约178㎡定位更高,预计做成四房三卫的格局,属于真正的改善型豪宅尺度,私密性和空间感更强.
【苏州道壹号官方售楼处咨询热线)打造园区首个抬板社区,全域抬高3m!打造「地下通勤层-地面交互层-私域生活层」的新加坡式高效且松弛,丰富且纯粹的立体生活体系与立体归家动线系统.
区域最大规模的奢华会所规模约4000㎡+架空层泛会所,放眼整个湖东板块,能拥有如此规模与高标准会所的新建项目并不多见,足以与翡丽甲第(会所约3000㎡)、玫瑰园(会所约2600㎡)、晋墅(会所约7000㎡)等高端住区的配套水准相媲美.
垂直功能会所涵盖运动、社交、休闲多维需求,四大主题架空层泛会所,覆盖儿童成长乐园、太太会客厅、人文艺术、社交友好空间,全龄段日常休闲下楼即享,为园区改善提供更佳选择!
红线内外一体化开发,打造约1万方亲水景观带,L型滨水河畔公园(申报中),实现从公园里回家,借由抬板进一步打造新加坡风情立体园林,实现「下沉庭院-板上游园-洄游景廊-阳台观景」四重景观体验.
整个项目位于钟南街东,苏州大道南,是2025年12月土拍被招商竞得,成交总价12.6亿元,成交楼面价27342元/㎡,溢价率2.02%.
地块地处湖东成熟高端住区,毗邻唐宁府、绿城云庐等知名小区,人文与居住氛围纯粹.周边配套成熟度高,生活便利性堪称全能:
南侧:一条河流、永旺梦乐城、新加坡国际学校、海归人才子女学校、星汇学校.
西侧:住宅天地源·水墨三十度、海悦花园四五区、钟南幼儿园,次新房颐和源璟,还有一大片空地
低密洋房、核芯地段、全能配套、稀缺户型、豪华会所……当所有这些顶级要素叠加在仅有的296套住宅上,其市场热度可想而知.
▸苏州道壹号售楼处地址:江苏省苏州市工业园区钟南街东、苏州大道南(湖东永旺梦乐城北侧)(看房请提前预约)
【温馨提示】本项目唯一官方联系方式,看房请提前预约!现场销售接待!谨防中介虚假信息!
a、功能用途:居住用房(小区、高品住宅)、工业用房(厂房、仓库)、商业用房(门面、商场)、办公用房(写字楼)、行政用房(军事、学校等单位用房及城市);
c、用途:居住用地、商业服务用地、工业用地、仓储用地、市政公共设施用地、交通用地、绿化用地、特殊用地等;
9、土地使用权:就是土地所有者根据土地分类对土地加以利用的权利(指依法对土地经营、利用和收益的权利).土地公有制采取了两种形式:即集体所有制和国家所有制.a)农村土地采用了集体所有制,属于农民集体所有;b)城市土地采取国家所有制的形式,属于全民所有;任何个人不能取得土地的所有权.
出让:从国家有偿取得使用权,方式:协议(如200-250万/亩)、招标(提出底价,根据使用用途和价格取得)、拍卖(价高者竟得,不违法的前提下,通过正规渠道取得);
b、二级市场:开发商获得土地后,投入一定的奖金建设,通过有偿或赠与将产权转买给需求者(新建商品房的买卖市场);
c、三级市场:房屋在消费市场的再次流通,包括:买卖、抵押、转让、租凭(二手房);
11、土地使用权出让:指国家以土地所有者身份,按指定地块的使用年限、用途和城市规划等条件,将城市土地使用权出让给土地使用者,并向土地使用者收取土地使用权出让金的行为.出让交易双方是国家和用地单位或个人.
地上权:指以支付租金为代价在他人土地上建筑房屋的权利,它的实质就是土地使用权;
抵押权:指土地使用权获得者在其有效的使用期限内有以土地作抵押获取银行贷款或其他担保的权利;
租赁权:指土地使用权获得者在其有效使用期限内将土地租给他人使用以获取收益,承租人即取得该块土地的租赁权;
13、土地使用年限:指国家将土地使用权出让给土地使用者,双方约定土地使用者可以使用的年限.
c、项目的存在不影响城市规划,不影响市容,只要向政府缴纳土地出让金可以继续使用.
PS:b、c条完全存在的情况下,以当时的地价购买使用年限,年限由政府规定,否则无条件收回;
14、商品房:开发商以市场地价取得土地使用权后进行开发建设,并经国土局批准在市场上流通的房地产,它是在获取房产证后,可自行转让、出租、继承、抵押、交换的固定资产.
五证:〈国有土地使用证〉、〈建设用地规划许可证〉、〈建设工程规划许可证〉、
二书:〈质量保证书〉、〈使用说明书〉、两书可以作为商品房买卖合同的补充约定,并且是房地产开发企业在商品房交付使用时向购房人提供的对商品房住宅承担质量责任的法律文件和保证文件.
16、烂尾楼:指未能完成施工中途停建的楼盘.造成楼盘烂尾的原因主要有资金不足、设计、施工存在严重质量问题,非常建设等.
17、楼花:指已经动工建造,但尚未建成的楼宇、房屋.即指图纸上的楼宇,处于建筑施工的最初阶段,离交房时间长,价格优惠,买了后又可转卖,赚差价.
18、炒楼花:买卖尚未建筑好的房屋.(现在政府有规定,商品房5年内不许转让,交5%的营业税,为了控制炒房)
19、期房:指具备预售条件,尚未竣工交付使用的商品房.(价格低、选择空间大、户型齐全、可监督建筑材料、质量)
20、现房:指已经工程质量监督部门验收,并取得质量合格证明文件,可以交付使用的商品房.(即买即入住、价格高、户型过时、选择空间不大)
21、经济适用房:指以微利价出售给广大中低收入家庭的商品房(带有社会保障性质的商品住宅,是有经济性和适用性).不是人人可以买到,必须符合当地政府所规定的条件,经过排号购买.长沙房口,25岁以上,65㎡以内以经济价购买,65㎡以外以商品房价购买,5年后才能转卖).
22、二手房:办好产权证,进行再次转让的房屋.其他如:公房、私房、集资房、廉租房、安置房等福利房.
23、诚意金:指商品房在未取得预售证之前,开发商收取客户的可退回的款项(一般可以获得开发商的折扣承诺).
24、定金:指当事人约定由一方向对方付给的作为债权人担保的一定数额的货币(能担保债权人的作用)不能返还.
31、别墅:指在郊外或风景区建造的供休养,住宿用的花园住宅,TOWRHOUSE(联体别墅、单排别墅).
32、SHOPPINGMALL:一站式购物,集购物、娱乐、休闲为一体的这么一个商业区域,起源于美国(也称第六商业业态).
33、物业管理:指由专业公司或机构,接受业主(或使用人)的委托,对物业实话专业化管理,并向业主(或使用人)提供高效、周到服务的行为.
34、物业管理内容:对房屋及其附属设备管理、维修;对房屋区域内的清洁卫生、安全保卫、公共绿化、公用设施、道路等实施管理;向业主提供其他综合性或特约的服务等.物业管理属社区管理范畴.
35、业主大会:指由物业管理区域内全体业主组成的,对本区域内物业管理具有决定权的组织形式.
36、业主代表大会:由物业管理区域内业主代表组成的对本区域内物业管理具有决定权的组织.
37、业主委员会:由物业管理区域内业主代表组成,代表全体业主对物业实施自治管理的组织,由业主代表大会或业主代表选举产生.
38、一次性付款:指购房户在购买商品房时,在没有享受政策性贷款的情况下,将全部买房款一次性付给售房单位的付款方式.
39、分期付款:购房者签约后,将购房款分成若干比例,按时间段或按施工进度分批交纳房款(针对期房),交房时,款项全部付清.
40、银行按揭:指以购房合同或房屋产权作抵押获得购房贷款的方式.即购房者在购房时,向银行提出担保的质押文件,在银行审核通过后,取得房屋总价的部分贷款,依抵押约定,按期按时间段向银行偿还贷款本息,并提供房地产作为偿还贷款的担保(一般的购房合同和产权证作为抵押,住房:七成二十年;门面:五成十年或六年十年).
41、公积金:“全称住房公积金”,指城镇住房制度改革中,国家机关、国有企业、城镇集体企业、外商投资企业、城镇私营企业及其他城镇企事业单位及其在职职工按国家规定缴存的,专项用于住房消费的资金(门面不行).缴存比例:均不得低于职工上一年度月平均工资的5%,有条件的城市,可以适当提高缴存比例;缴存方式:一是由职工个人缴存;二是由职工所在单位缴存;
42、个人住房公积金贷款:指参加了住房公积金制度的职工,在购买、建筑、翻建和大修自住住房时,因资金不足愿以新购或其他住房产权作抵押而向住房公积金管理中心申请的贷款.
43、契税:指房屋所有权发生变更时,就当事人所订契约,按房价的一定比例,向产权承受人征收的一次性税收(普通住宅:2%、非普通住宅:4%).
44、公共维修基金:指住宅、楼房的公共部位和公共设施设备的维修养护基金(普通住宅:2%;电梯房、门面:3%).
46、起价:即“起步价”是指物业所有房源中的最低销售价格(一般指户型、朝向、格局不好的楼房价格,各层的差价几十~几百元).
47、基价:即“基础价”指经过核算而确定的每平方米商品房的基本价格.是针对房地产定价方法而言的,与起步价没有关系(楼层、朝向不同价格也不同).
48、均价:即物业的平均销售价格,将本物业各套房子的销售价格相加之后的和除以各单位建筑面积的和数,即可得出每平方米的均价).
49、成本价:指住房制度改革中,出售公有住房时按照建筑公有住宅的平均成本测定的价格.
包括:A、征地和拆迁补偿费;B、勘察设计和前期工程费;C、建安工程费;D、住宅小区基础设施建设费;E、管理费;F、贷款利息;G、税金;
3、占地面积:红线、建筑面积:指建筑物外墙(柱)勒脚以上各层外围水平投影面积之和,包括阳台、挑廊、地下室、室外楼梯等.
5、销售面积:指商品房按套出售,其销售面积为购房者所购买的套内建筑面积与应分摊面积的共有建筑面积之和.
6、使用面积:指住宅各层面平中,直接供住户生活使用的净面积之和(在住房买卖中,一般不采用使用面积来计算价格).
7、公摊面积标准:指商品房销售中应分摊计入销售面积的商品房中公共建筑空间的面积,由两部分组成:一)室内外楼梯、内外廊、公共门厅、通道、电梯、配电房、设备层、设备用房、结构转换层、技术层、空调机房、消防控制室、为整栋楼层服务的值班警卫室,建筑物内的垃圾房以及突出屋面有围护结构的楼梯间、电梯机房、水箱间等;二)套单元与公用建筑空间之间的分隔以及外墙(包括山墙)墙体水平投影面积.
11、容积率:总建筑面积/总用地面积(多层容积率大致为3,高层为5,超高层为7,别墅为0.3-0.45左右、容积率越低,居家环境越好、单价高、品质高;容积率越高,单价低、品质低)
13、绿化率:指项目规划建设用地范围内的绿化面积与规划建设用地面积之比.
14、绿地率:所有住宅各类绿地面积与住宅总用地面积的比例.新区建设中不应低于30%,旧区改造时不宜低于25%(不包括屋顶、晒台的人工绿地).
18、净高:指层高减去楼板厚度的净剩值,即楼板上表面至上层楼板下表面的距离.
19、绿地面积:指能够用于绿化的土地面积,不包括屋顶绿化、垂直绿化和覆盖土小于2平方米的土地.
24、框架结构:指以钢筋混凝土浇捣成承重梁柱,适合大规模工业化施工,效率较高,承重墙在梁柱,墙面可以自由打通.其次还有:砖木结构、钢筋混凝土、框简结构、钢体结构等.
25、房屋的耐用年限:指房屋能够维持正常使用的年限,与设计的标准、建筑的材料、施工质量、使用状况、维护保养相关.
1、房地产开发:在依法取得土地使用权的土地上按照使用性质和要求进行基础设施,房屋建筑的活动.它包括从定点选址到交付使用的全过程,由征地与拆迁安置、规划设计、供水、排水、供电、通电讯、通道路、绿化、房屋建设等多项内容组成.
3、房屋开发:由买得土地使用权的发展商,对土地进行平整,修路铺设上下水管道及热力网,然后建造各类房屋以及公共设施.
4、房地产二次开发:指先将生地开发成熟地(具备使用条件),然后再进行拍卖和出租,由买地者去建造房屋.
7、给水、排水系统:包括取水工程、输水工程、净水工程、配水管网(上下水道),排水管网(下水道)、污水处理、排放工程.
8、土地国家所有权:指作为土地所有者的国家,对自己所有的土地依法享有占有、使用、收益和处分的权利.
9、土地集体所有权:指农村劳动群众集体经济组织,在法律规定范围内对自己所有土地享有占有、使用、收益和处分的权利.
10、房屋的所有权:对房屋全面支配的权利,包括:占有权、使用权、收益权、处分权.
法律意义:土地所有者将土地当成自己的财产,并将其实行占有、垄断、拥有对土地支配的权利.
2)首期购房款(不低于30%,二次购房者首付不低于40%)购房人已付购房款收据原件及复印件;
3、公积金提取条件:符合以下条件的可以一次性提取本人住房公积金帐户内的存储余额.
它是一个精彩、特殊的、无处不销售、人人都使用、升值空间大、有趣、自由、有成就感、锻炼人,上不封顶收入的一个较灵活、广泛、综合性的一个行业.
3、行动过程:执行---核心价值---中程目标---短期目标---每日工作计划
5、建筑面积必须高于2.2米(低于2.2米的车库,杂屋没有产权),建筑如配套游泳池、车库等不算面积);
7、商圈:称之购买圈或商势圈,指在一定的经济区域内以商场或商业区为中心向周围扩展形成的辐射力量,对顾客吸引而形成的一定范围或区域.
分为:核心商圈:以大型商场为中心,人口占60-80%,价格高;次级商圈:拥有客户占20%;
1)价格组成=土地成本价格+建安成本+利润+管理费用(国民生产总值,DTP指数、房地产政策、法律法规);
2)影响房地产因素:开发商实力、经济态度、地段、交通、周边环境、配套设施、绿化、升值、政府规划、潜力、客户定位、产品设计、物业管理、市场供求、品牌、销售技巧、自然环境不可复制;
3)影响每一栋单位的价格因素:楼层层高、户型、朝向、景观、外围功能、面积、建筑结构;
4)多层:7层以下,金三银四铜五六;高层:7层以上,越往高上走价格越高,越往上景观越好;
5)影响商铺:升值潜力、地段、交通、配套、市场、定位(业态定位)、消费群、品牌、人流量、物业管理.针对每一个铺位影响因素:位置、面积(面积小、面积消费群体多,价格高)、楼层、铺型(柱、开间、阻挡)、配套设施.
3)如果客户已拿了资料时,你顺着他资料内容一条条讲解下去,然后合上递给他;
a)产品调查:规模、占地面积、铺位、功能定位(做什么,业态定位)、铺型、配置(电
c)价格调查:销售价格、均价、不同楼层差价、付款方式、租金价格(临街与内街价格);
具体调查方式:问卷、街访(入户走访、单层、左手入门、双手右手入门)、专家访谈、市场客户访谈;
具体配套调查:医院、银行、超市、休闲场所、酒店、学校、交通(人流、车流、公交车、长途车)
13、风水与房地产营销:南向房间特征(通风时间长、日照时间长、不易发霉、冬暖夏凉).
风水宝地:依山伴水,龙脉(建筑物的朝向的阴阳取舍.阴:山之南、水之北;阳:山之北、水之南;龙椅之地:绿色是生命色;中纬度:夏吹东南风、西南风)
16、产权证:土地使用证、房产证(集资房是没有产权证的,福利房是有产权证,可以转让,在国家允许的年限内可以转让、出租).
环境:周边所表现的元素:生态、人文、地理、交通.一个楼盘的环境包括:绿化、交通、密度、配套设施、日照、朝向.
3)经验评估法:根据以往经验来测标,价格阻力位针对顾客来说,内容包括:均价、起价(作用,降低入市门槛、一般是低开高涨,只对于大型楼盘、而小规模楼
盘不宜采用低开高走)、最高价(最好的楼层肯定是最高价)、垂直价格(一般金三银四铜五铁六,超过27米空气质量越差)、价格的可塑性(有
公开销售:用于调节控制销售进度,先销次的,留下一部分好的,用于最后冲刺.
包括:强销期(寻找热销势头)、持销期(也叫调整期,合理安排)、冲刺期、扫尾期.
2)图纸:设计方案,采光通风是否符合国家规定,规划、设计院进行调查,研究;
营销手法:营销突围,侧翼进攻,通路卡位,最多客户消费场所.如俱乐部、酒吧、歌舞厅、高尔夫、通过派人进入上述场所与期接触、吸引顾客、实行营销,节省广告费及其它费用.
23、项目定位:了解最大化的消费群体---再了解消费型态---得出需求---市场产品
苏州新房【苏州星河湾】官网-【苏州星河湾】-建面166-300㎡奢装大平层-中央水系园林-价格-地址-楼盘详情
从广州首个项目万人空巷的盛景,到今天落子苏州,星河湾只为城市塔尖人群定制传世资产。约2/3土地是园林水系,中央水景近8000㎡。此时选择【苏州星河湾】,不仅是抓住了利率低、环境松的政策窗口期,更是锚定了一处
苏州湾【绿城桃源里】售楼处官网-【绿城桃源里】-建面约195-660㎡宋风叠加合院-低密洋房-户型-价格-地址-配套
在这样的风口下,苏州湾的【绿城桃源里】值得重点关注!◎地段稀缺:苏州湾核心,低密洋房与合院,卖一套少一套。此刻入驻绿城桃源里,不仅是占有当下的繁华与静谧,更是提前锁定未来的增值空间。政策窗口期不等人,苏州湾这
苏州高铁新城【金地玖峯汇】-建面约127-197㎡新四代低密住区-【金地玖峯汇】-户型-价格-配套-详情
这里是高铁城芯,一个建面约127-197㎡的新四代低密住区。随着公积金新政释放巨大购买力,苏州北站扩容、周边商业日益成熟,高铁新城的城市能级与居住价值正飞速提升。现在入住金地玖峯汇,不仅是安家,更是抢占一座新
苏州工业园区【天熠东方】售楼处官网-【天熠东方】建面约162-253㎡纯洋房豪宅-户型-价格-配套
月亮湾畔建面约162㎡-253㎡独墅湖湾区国际豪宅产品类型:10栋6-11F纯洋房建筑面积:约-253㎡迭代人居范本装修标准:精装交付物业公司:象屿物业项目地址:工业园区星湖街西、创苑
苏州新房【又见江南院】官网-【又见江南院】123㎡洋房133-158㎡院墅-户型-价格-地址-配套
集苏州5座园林精髓,承香山帮匠艺,匠筑建面约123㎡科技洋房、建面约133-158㎡院墅臻品。项目地址:苏州孙武路与香山路交汇处社区规划:25幢联排、3幢10F洋房容积率:约1.01绿化率:30%规划户数:
郑重提示:本网站作为房产信息聚合类导航网站,仅为方便广大用户掌握信息而提供一站式无偿浏览、查阅的功能,本站楼盘信息并非广告,最终请以政府部门登记备案及开发商公布为准。错误信息举报电话,邮箱 或米乐股份有限公司

Copyright © 2025 米乐股份有限公司 版权所有 备案号:冀ICP备2023008453号-1